CENTRAL MARIN RESIDENCE

Located in a small town a half hour north of the Golden Gate Bridge, the existing home was a mash-up of a single-story bungalow and a careless two-story addition.  Our design rebuilt the home and revived features integral to its Craftsman origins.  Historic features like a generous entry porch, large windows, deep eaves, and ample built-ins were revived and paired with a contemporary approach to layout, palette, and new indoor/outdoor connections to connect the home with the yard.

The new entry porch provides a welcoming threshold at the front of the home, with a wide intermediate landing that can be used as a sitting area looking over the street.   On the rear side of the building, each end of the kitchen/dining room connects to the yard, and a deep landing off the kitchen provides an outdoor dining space connected to the yard.  An awning wraps the back of the home, scaling the building down to the yard and providing shade.

The main floor level includes both “formal” rooms and open-plan spaces consistent with contemporary family life.  Built-in features include window seats, storage benches, and niches which provide decorative relief or center functions, like the coffee-making alcove.  The interior palette reflects the client’s desire to include colorful, large planes of highly textured finishes, balanced with the warm tones of the Oak woodwork and floors.

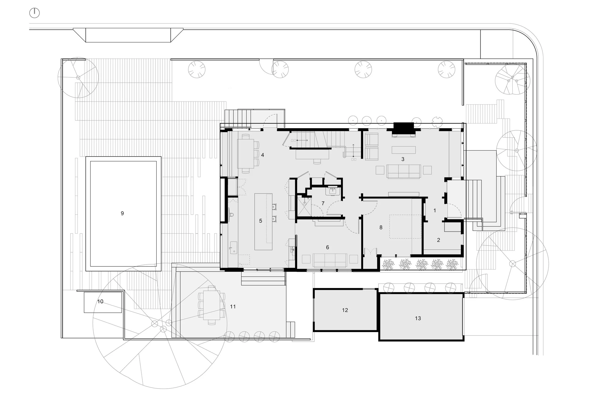
FLOOR PLAN 01

1. ENTRY
2. MUD ROOM
3. LIVING ROOM
4. DINING
5. KITCHEN
6. DEN
7. BATHROOM
8. BEDROOM / OFFICE
9. POOL
10. POOL EQUIP & STORAGE
11. DECK
12. OFFICE
13. GARAGE

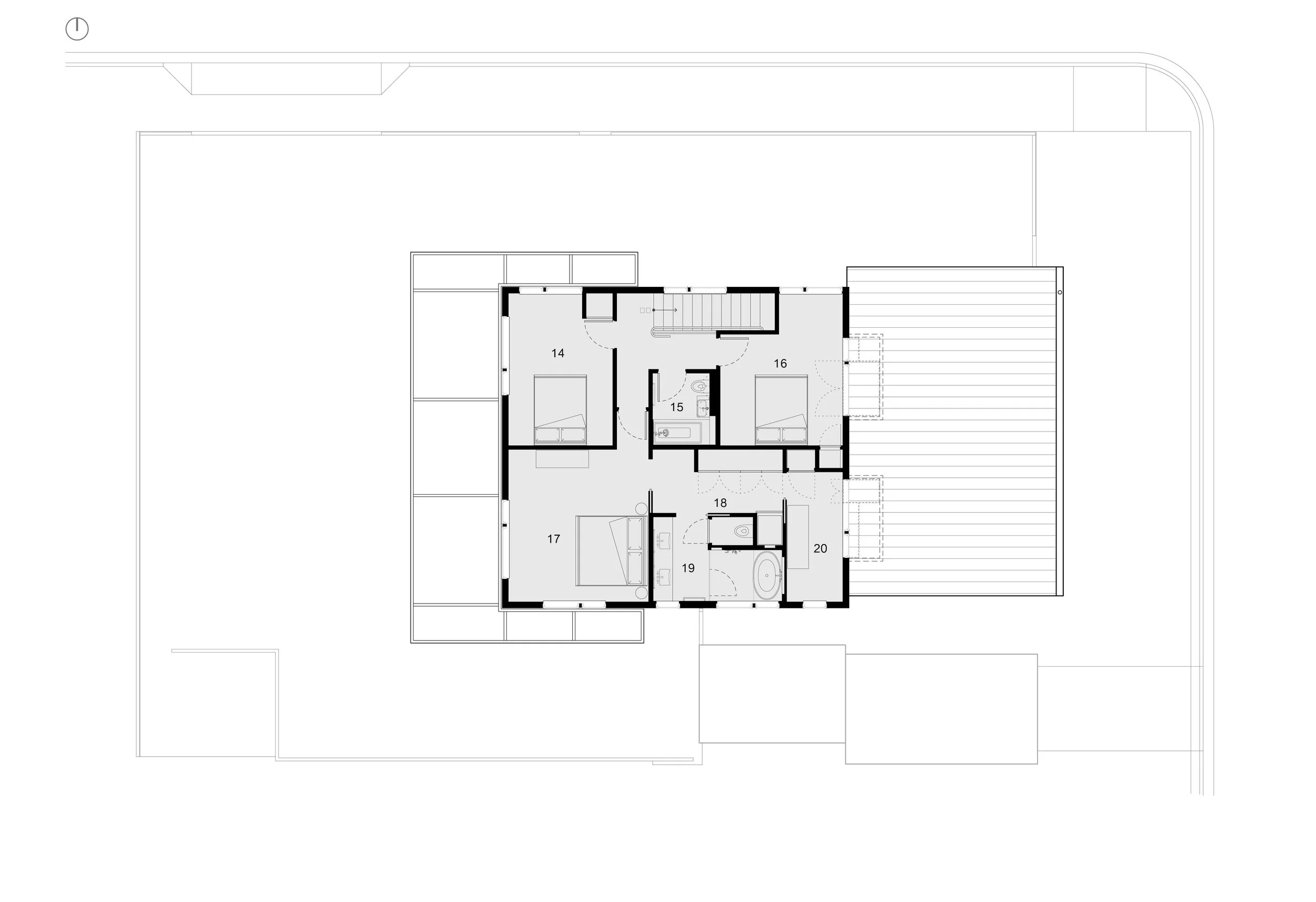
FLOOR PLAN 02

14. BEDROOM
15. BATHROOM
16. BEDROOM
17. PRIMARY BEDROOM
18. WARDROBE
19. PRIMAY BATHROOM
20. OFFICE